800.968.3178
Toggle navigation
HOME PLANS
PHOTO GALLERY
WHO WE ARE
WHAT WE DO
TRENDING
CONTACT
Toggle navigation
GET INSPIRED
DESIGN
CRAFT
BUILD
Finger Lakes Home Plans
Finger Lakes
Total square footage:
  2,887
Number of levels:
 2
Number of Bedrooms:
 3
Number of Bathrooms:
 2.5
Basement:
 Yes
Garage:
 Yes
Download full plan ❭❭
Click the images below to enlarge the plans
Front Elevation
Rear Elevation
Right Elevation
Left Elevation
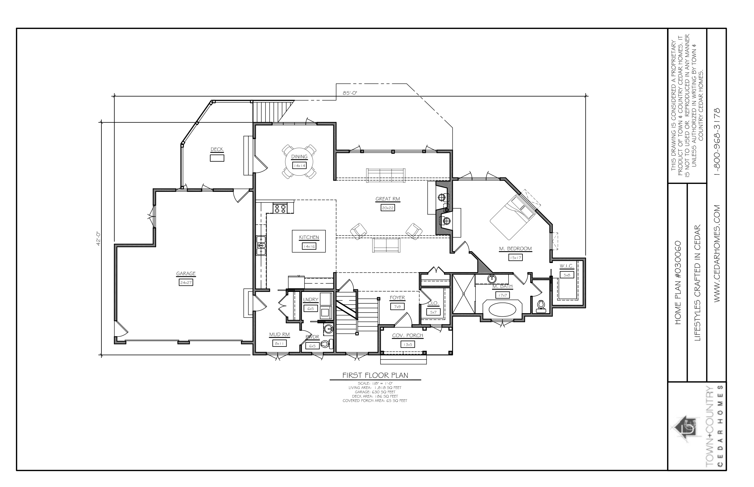
First Floor Plan
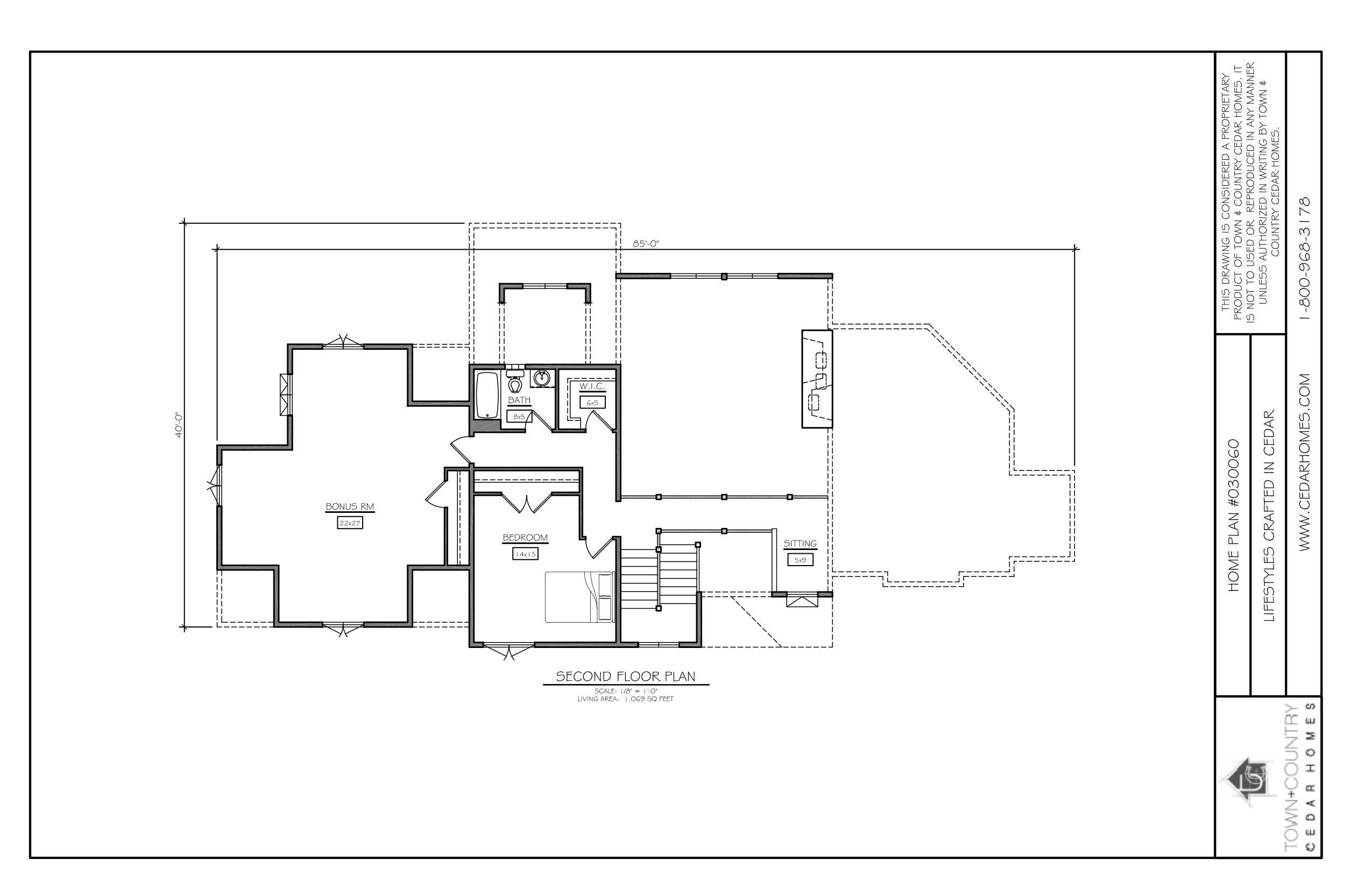
Second Floor Plan
Lower Level Floor Plan
Return to Search Results ❭❭
New Search ❭❭
An Invitation to Talk About Your Home
First Name:*
Last Name:*
Email Address:*
Phone*
What can we help you with?
Keep this field blank